LOGEMENTS ET COMMERCES- VILLENEUVE LA GARENNE

Crédit photo : 11h45@ RETOUR
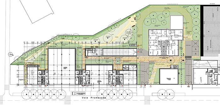
lieu Villeneuve-la-Garenne (93) PROGRAMME Création d'espaces publics autour de 45 nouveaux logements et commerces. MISSION MOE complète état Réalisé année 2014 SURFACE 1.6 ha
parti d'aménagement
Suite à la construction de 45 logements et commerces et la réhabilitation de la tour existante, le projet réalisé porte sur la requalification des espaces extérieurs collectifs. Le projet inclut un parvis pour la tour, l'intégration d'un commerce (pharmacie), une voie pompier, des accès piétons et un jardin paysager pour les habitants.
Maîtrise d’ouvrage: France Habitation Maîtrise d’œuvre : GUY VAUGHAN ARCHITECTE - Architecte mandataire BEAULIEU INGÉNIERIE - Bureau d'étude ATELIER PHUSIS - Paysagiste Estimation (esp. ext.) : 288 090,00 € HT
CONTACT 26 rue des Trois - Bornes 75011 PARIS +33 (0)1 49 23 01 44 (admin.) +33 (0)1 49 23 06 82 (atelier) mail: atelierphusis@wanadoo.fr web: atelierphusis.com
MENU Accueil Projets L'agence L'équipe
SUIVEZ-NOUS